trailside modular barn with lean to

Waynesboro, VA Project - 34x36 Trailside with 10 Lean-To

avatar J&N Structures Mar 4, 2026

Project Description:

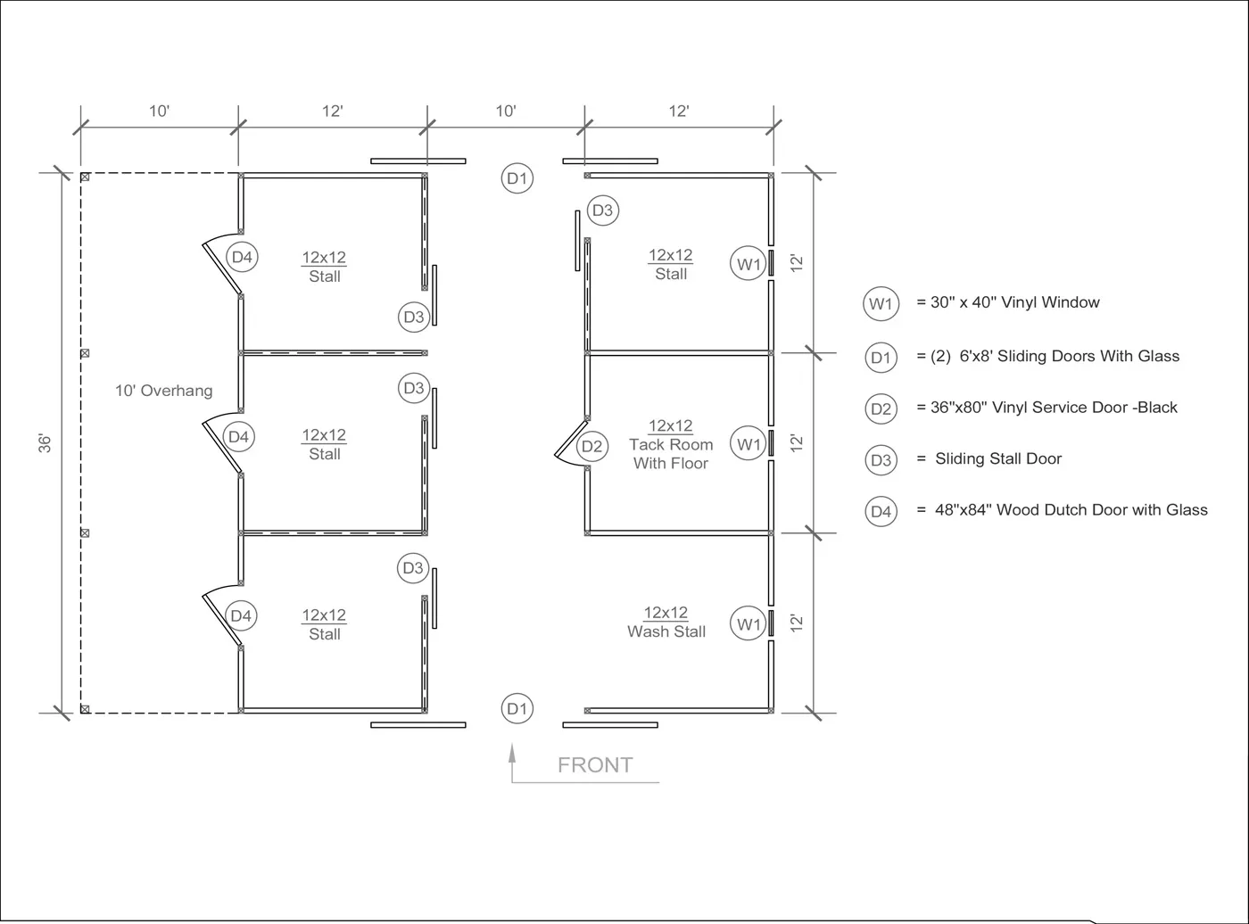
This 34' x 36' modular Trailside horse barn features a 10' open lean-to. Located in Waynesboro, VA, the barn is built with white pine board and batten siding painted Ivory by Sherwin Williams. The corner trim, window trim, door trim, and crossbucks are painted black. The roof is a 29 gauge black metal roof. The barn includes insulated Double Hung Endure EN600 windows manufactured by ProVia. The insulated service doors are manufactured by Keystone Door. The 5' x 9' sliding doors with tempered glass windows, as well as the 48" x 84" wood Dutch doors with glass and grill, 20" hinges, and horseshoe latches, are manufactured by Appalachian Woodcrafts.

Benefits:

This modular horse barn includes four 12' x 12' stalls lined with 4' high oak kickboards and sliding stall doors with yokes opening into the center aisle. Additional interior spaces include a 12' x 12' tack room, a 12' x 12' wash stall, and a 10' x 36' center aisle. The stalls feature SYP T&G stall fronts with standard grills on the fronts and partitions. The wash stall is finished with white glass board on the walls. The tack room includes a 36" x 80" service door and a window. Additional features include a 36 linear foot ridge vent and two gable vents. Black grids are installed in the center aisle doors and Dutch doors. The barn is topped with a Cupola #B 37 from the Boston Series.

City: Waynesboro
State: Virginia
Manufactured in: Lititz, PA
Dimensions: 34' x 36'