
South Kingstown, RI Project - 12x24 Shed Row
Project Description:
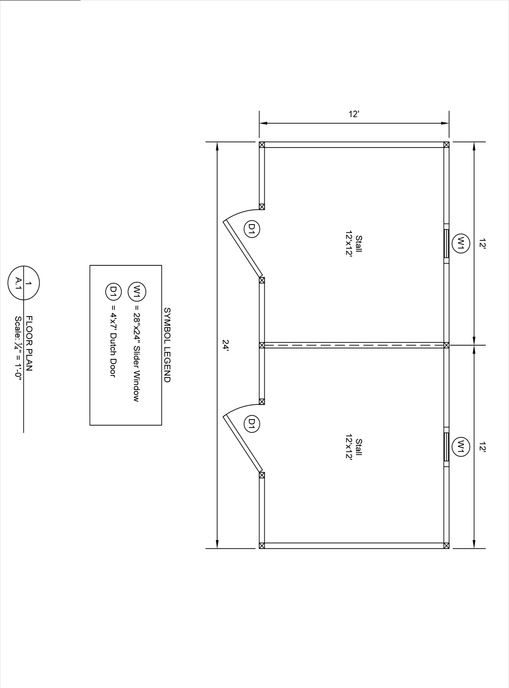
This is a 12'x24' shed row horse barn. This South Kingstown, RI horse barn was built with white pine board and batten siding. It has quaker style rafters and an architectural shingle roof with GAF Timberline HDZ (Pewter Gray color) shingles. The windows are sliding wood barn sash windows manufactured by Bird-In-Hand Windows & Doors. The 4'x7' dutch doors and gable vents are manufactured by J&N Structures.
Layout:
This shed row horse barn has (2) 12'x12' stalls. The stalls are lined with 4' high oak kick boards and have a dutch door in the front and a sliding window in the rear. On each end of the barn, up near the peak, are gable vents.
City: South Kingstown
State: Rhode Island
Manufactured in: Lititz, PA
Dimensions: 12' x 24'