
Chesapeake, VA Project - 10x24 Shed Row
Project Description:
This is a 10'x24' shed row horse barn. This Chesapeake, VA horse barn was built with white pine board and batten siding painted with red paint manufactured by Haley Paint Company. The corner trim, window trim, door trim, and crossbucks are painted tan. It has quaker style rafters and an architectural shingle roof with GAF Timberline HDZ (Weathered Wood color) shingles. The windows are sliding wood barn sash windows manufactured by Bird-In-Hand Windows & Doors. The 4'x7' dutch door, service door, and gable vents are manufactured by J&N Structures.
Layout:
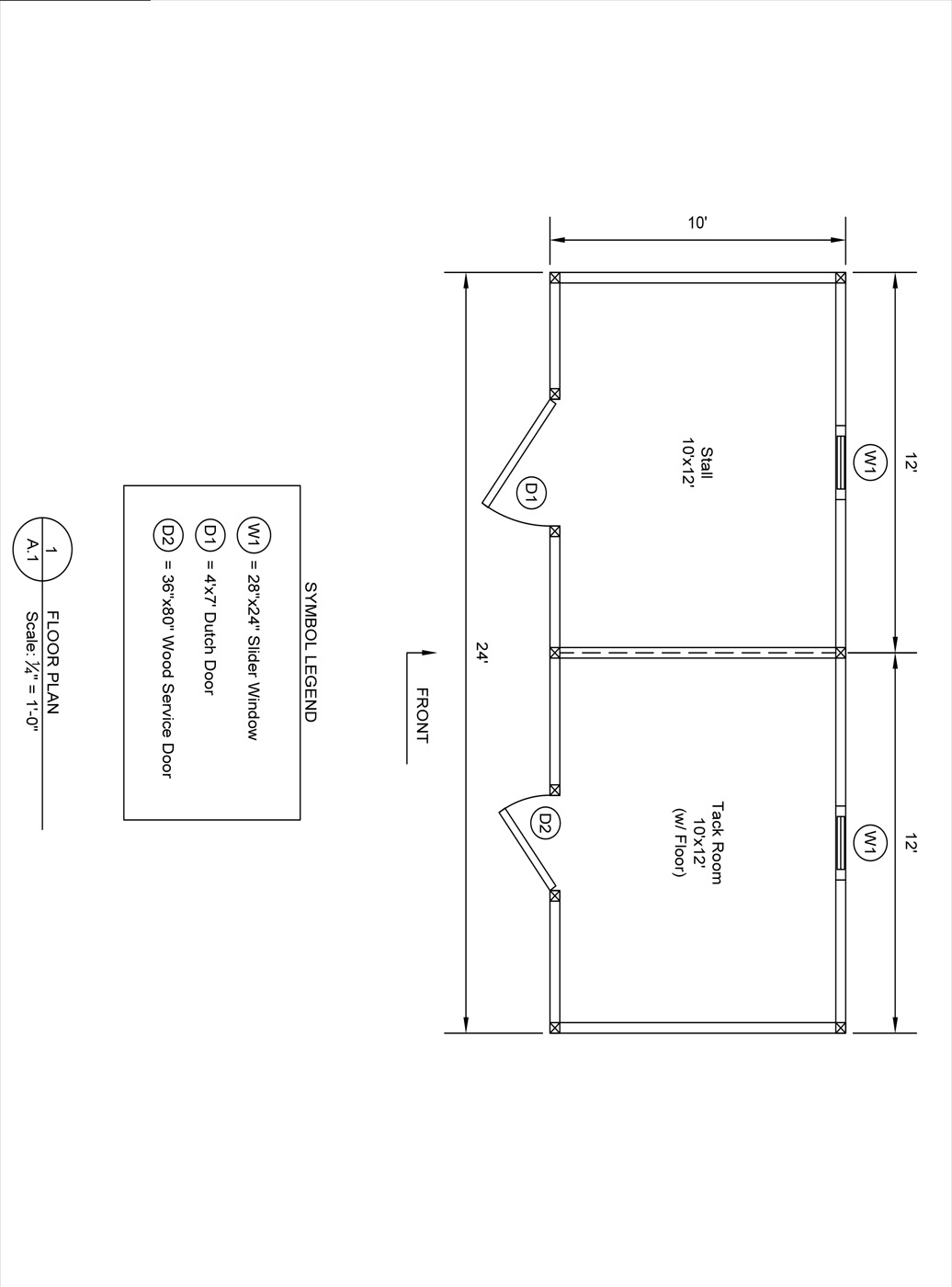
This shed row horse barn has a 10'x12' stall and a 10'x12' tack room. The stall is lined with 4' high oak kick boards and has a dutch door in the front and a sliding window in the rear. The dutch door is reversed for miniature horses. The tack room has flooring, a service door in the front, and a sliding window in the rear. On each end of the barn, up near the peak, are gable vents.
City: Chesapeake
State: Virginia
Manufactured in: Lititz, PA
Dimensions: 10' x 24'