run-in shed with shakewood shingles

Gettysburg, PA Project - 10x20 Run-In Shed

avatar J&N Structures Dec 9, 2025

Project Description:

This is a 10'x20' run-in shed. This Gettysburg, PA run-in shed was built with white pine board and batten siding painted with light gray paint manufactured by Haley Paint Company. The corner trim and run-in opening trim are painted white. It has quaker style rafters and architectural shingle roof with GAF Timberline HDZ (Shakewood color) shingles. The gable vents are manufactured by J&N Structures.

Layout:

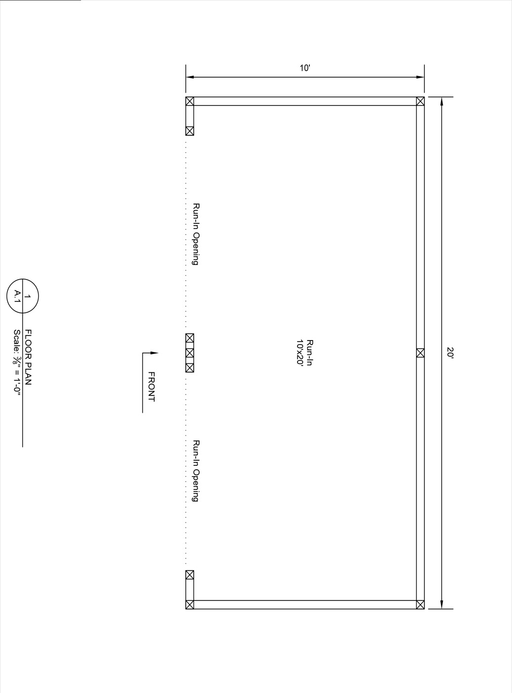
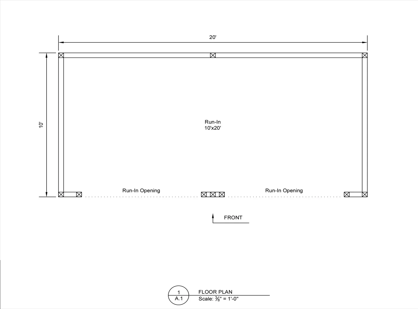
This run-in shed has a 10'x20' run-in area with (2) openings. The run-in area is lined with 4' high oak kick boards. On each end of the barn, up near the peak, are gable vents.

City: Gettysburg
State: Pennsylvania
Manufactured in: Lititz, PA
Dimensions: 10' x 20'