run-in shed with quaker style rafters

Atglen, PA Project - 10x16 Run-In Shed

avatar J&N Structures Dec 9, 2025

Project Description:

This is a 10'x16' run-in shed. This Atglen, PA run-in shed was built with white pine board and batten siding. It has quaker style rafters and architectural shingle roof with GAF Timberline HDZ (Weathered Wood color) shingles.

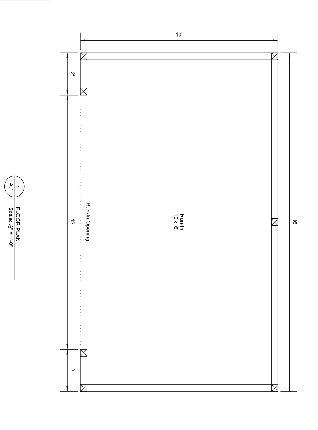
Layout:

This run-in shed has a 10'x16' run-in area with (1) opening. The run-in area is lined with 4' high oak kick boards.

City: Atglen
State: Pennsylvania
Manufactured in: Lititz, PA
Dimensions: 10' x 16'