high country modular barn with loft and lean-to

West Newbury, MA Project - 32x24 High Country Barn with Lean-To

avatar J&N Structures Dec 9, 2025

Project Description:

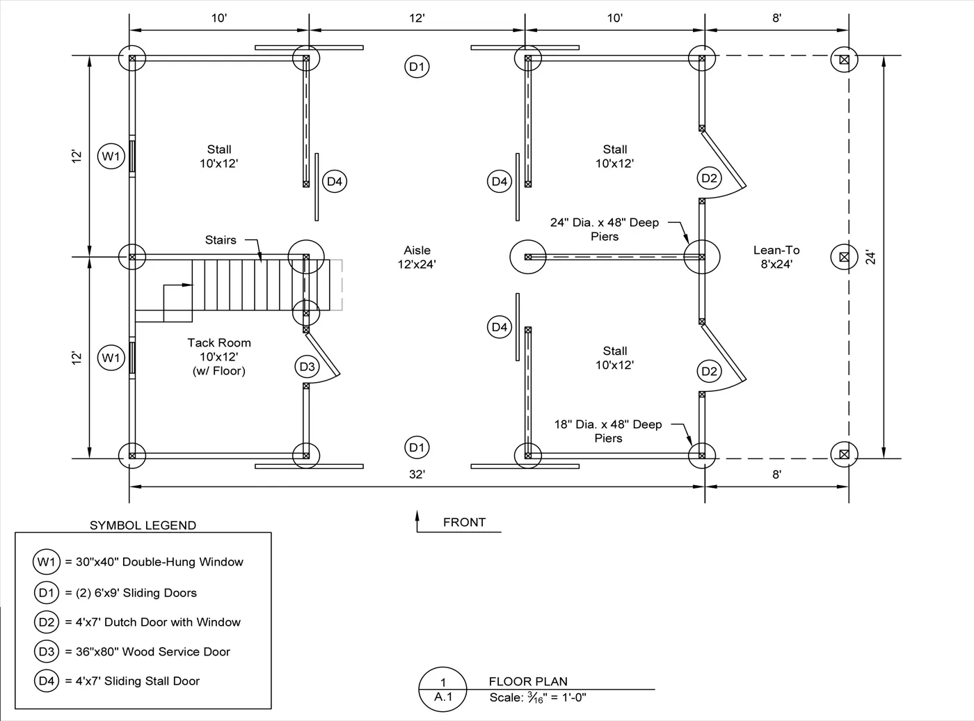
This is a 32’x24’ modular horse barn in the high country style with 8’ lean-to. This West Newbury, MA horse barn was built with white pine board & batten siding painted with black paint manufactured by Fisher Paints. The doors are stained with caramel stain manufactured by Haley Paint Company. The roof has 8 pitch rafters and architectural shingle roof with GAF Timberline HDZ (Charcoal color) shingles. The windows are insulated double-hung Endure Series windows manufactured by Provia Windows & Doors. The 6’x9’ roll doors and 4’x7’ dutch doors with window and service door and loft doors and gable vents are manufactured by J&N Structures.

Layout:

This modular horse barn has (3) 10’x12’ stalls and a 10’x12’ tack room and a 12’x24’ center aisle. It has a full loft accessed via stairs in the tack room. Each end of the loft has a swinging loft door and, up near the peak, is a gable vent. The stalls are lined with 4’ high oak kick boards and have a sliding stall door into the center aisle. (2) stalls have a dutch door with window to the outside. The 3rd stall has an insulated double-hung window. The tack room has floor and an insulated double-hung window and a service door into the center aisle. The center aisle has double sliding doors at each end.

City: West Newbury
State: Massachusetts
Manufactured in: Lititz, PA
Dimensions: 32' x 24' + 8' Lean-To