high country modular barn

South Royalton, VT Project - 36x36 High Country with 10 Lean-To

avatar J&N Structures Feb 16, 2026

Project Description:

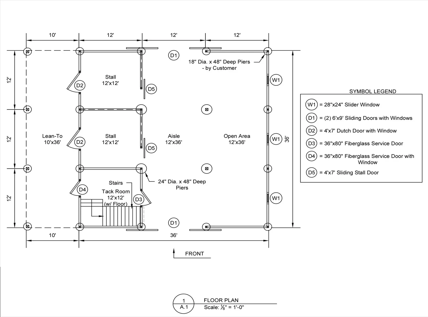
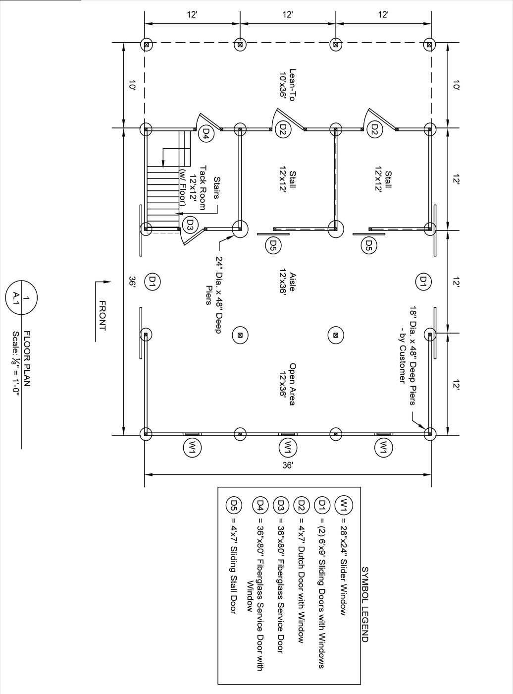
This is a 36'x36' modular horse barn in the high country style with 10' lean-to. This South Royalton, VT horse barn was built with white pine board & batten siding painted with red paint manufactured by Sherwin Williams. The roof has 8 pitch rafters and an insulated 28 gauge metal roof (Charcoal color) manufactured by A.B. Martin. The small windows are sliding wood barn sash windows manufactured by Bird-In-Hand Windows & Doors and the large windows are insulated double-hung Endure Series triple windows manufactured by ProVia Windows & Doors. The insulated service door and insulated service door with window were also manufactured by Bird-In-Hand Windows & Doors. The 6'x9' roll doors with windows and 4'x7' dutch doors with window and gable vents are manufactured by J&N Structures. On the roof is a B-48 Boston Series cupola with rooster weather vane manufactured by Creative Cupolas.

Layout:

This modular horse barn has (2) 12'x12' stalls and a 12'x12' tack room and a 12'x36' open storage area and a 12'x36' center aisle. It has a full loft accessed via stairs in the tack room. Each end of the loft has an insulated double-hung triple window and, up near the peak, is a gable vent. The stalls are lined with 4' high oak kick boards and have a sliding stall door into the center aisle and a dutch door with window to the outside. The tack room has floor and an insulated service door with window to the outside and an insulated service door into the center aisle. The open storage area has (3) sliding windows and is open to the center aisle. The center aisle has double sliding doors with windows at each end.

City: South Royalton
State: Vermont
Manufactured in: Lititz, PA
Dimensions: 36' x 36'