high country modular horse barn

Saratoga Springs, NY Project - 36x48 with Loft & Lean-Tos

avatar J&N Structures Jan 2, 2026

Project Description:

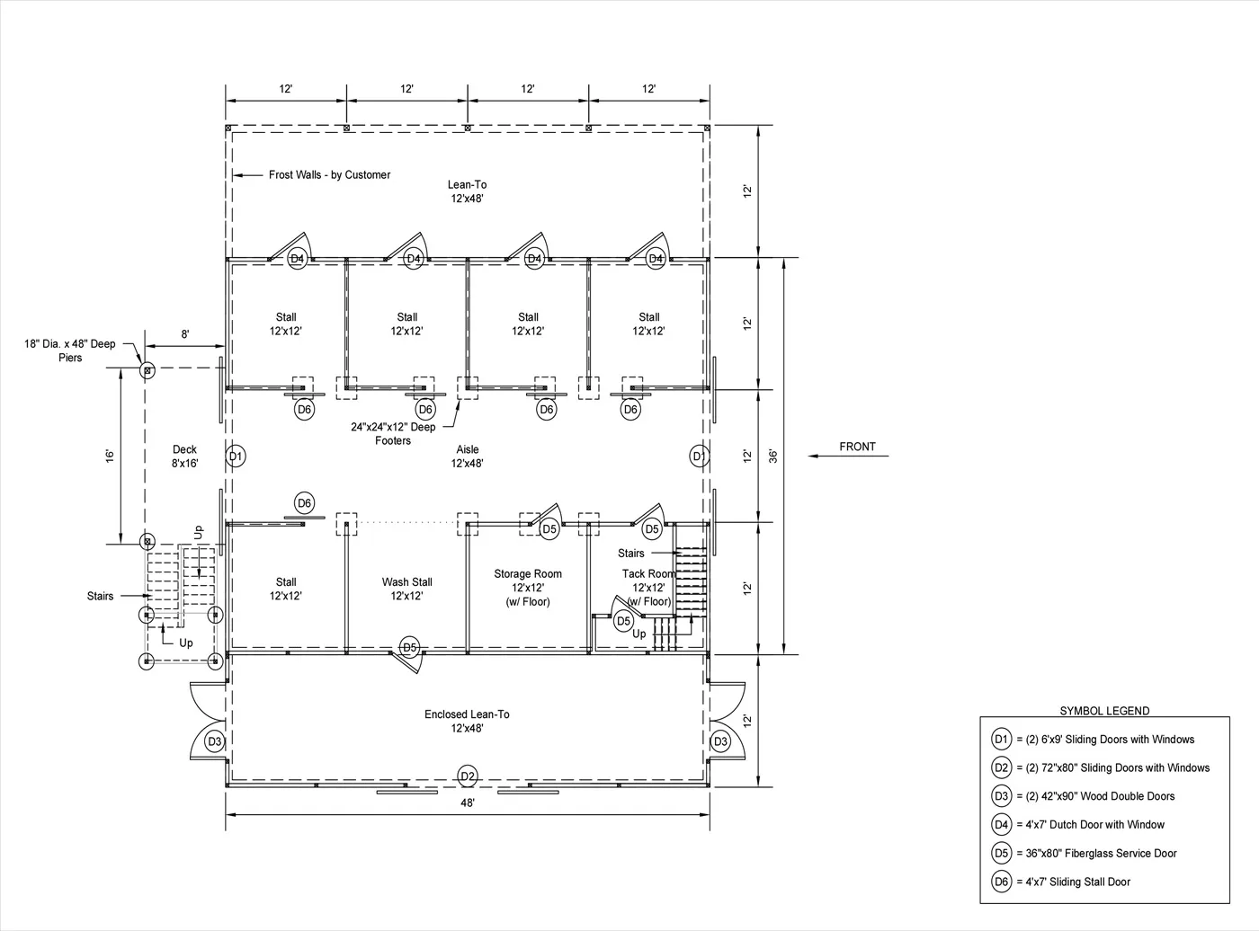
This is a 36’x48’ modular horse barn with a 12’ open lean-to and a 12' enclosed lean-to. This Saratoga Springs, NY horse barn was built with LP SmartSide board & batten siding painted with custom color paint manufactured by Benjamin Moore & Company. The corner trim, window trim, door trim, and crossbucks are painted white. The roof has 10 pitch rafters and architectural shingle roof with GAF Timberline HDZ (Pewter Gray color) shingles. The gutters and downspouts are manufactured by Premier Spouting Design. The windows are insulated double-hung Endure Series windows manufactured by Provia Windows & Doors. The insulated service doors were manufactured by Bird-In-Hand Windows & Doors. The 6’x9’ roll doors with windows, 72"x80" roll doors with windows, 4’x7’ dutch doors with window, and 42"x90" swinging double doors are manufactured by J&N Structures. The foundation is a concrete pad installed by the customer.

Benefits:

This modular horse barn has (5) 12’x12’ stalls, a 12’x12’ tack room, a 12’x12’ storage room, a 12’x12’ wash stall, and a 12’x48’ center aisle. It includes a full loft accessed via enclosed stairs in the tack room. One end of the loft has an insulated double-hung triple window; the other end has insulated double French doors opening onto a roof-covered 8’x16’ deck with stairs. Along one side of the loft is a 36' shed dormer with (2) double-hung windows and a triple window. The opposite side features a 36' reverse gable with a triple window.

The stalls are lined with 4’ high oak kick boards and have sliding stall doors with yokes into the center aisle. Four stalls also include a dutch door with window to the outside. The tack room has an insulated floor, an insulated service door into the center aisle, and another to the enclosed stairway. The wash stall has white glass boards and is open to the center aisle with a service door to the enclosed lean-to. The storage room also has an insulated floor and service door to the aisle.

The enclosed lean-to includes swinging double doors at each end and double sliding doors with windows along the side. The center aisle features double sliding doors with windows at both ends, with a pent roof over the front entry.

City: Saratoga Springs
State: New York
Dimensions: 36' x 48'