high country modular barn

Midland, VA Project - 36x132 High Country

avatar J&N Structures Feb 16, 2026

Project Description:

This is a 36'x132' modular horse barn in the high country style. This Midland, VA horse barn was built with LP SmartSide board & batten siding painted with lazy gray color paint manufactured by Sherwin Williams. The corner trim and window trim and door trim and crossbucks are painted cyberspace color. The roof has 8 pitch rafters and architectural shingle roof with GAF Timberline HDZ (Pewter Gray color) shingles. The single windows and triple windows are insulated double-hung Endure Series windows manufactured by ProVia Windows & Doors. The insulated service doors were manufactured by Bird-In-Hand Windows & Doors. The un-insulated 9'x7' SRP Series overhead garage door was manufactured by General Doors Corporation and installed by Monterey Door. The 6'x9' roll doors with windows and 6'x8' roll doors with windows and 4'x7' dutch doors with window and 4'x3' top section of dutch doors with window and 4'x7' service door and gable vents are manufactured by J&N Structures. On the roof is a B-48 Boston Series cupola and (2) B-37 Boston Series cupolas manufactured by Creative Cupolas. The foundations are frost walls installed by the customer. The arena was installed by the customer.

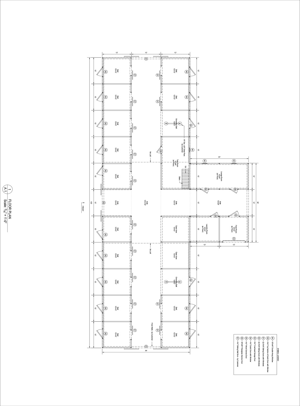
Layout:

This modular horse barn has (14) 12'x12' stalls and a 12'x24' tack room and (2) 12'x12' grooming stalls and (2) 12'x12' open storage areas and a 12'x12' feed room and a 12'x24 lounge and a 12'x12' laundry room and 12' wide center aisles. Part of the barn has cathedral ceiling and part of the barn has a loft accessed via stairs in the tack room. The loft is enclosed and one end of the loft has a reverse gable with an insulated double-hung triple window with a pent roof above. The areas with cathedral ceiling each have a dormer and on the gable is an insulated double-hung triple window and, up near the peak, is a gable vent. The dormers each have an insulated double-hung window. The stalls are lined 10' high with horizontal southern yellow pine tongue and groove kick boards and have a stall door installed by the customer into the center aisle and a top section of a dutch door with window to the outside. The tack room has floor and an insulated double-hung window and an insulated service door into the center aisle. The grooming stalls are lined 10' high with horizontal southern yellow pine tongue and groove kick boards and have a removable partial partition and a dutch door with window to the outside and are open to the center aisle. The open storage areas are open to the center aisle. The feed room has floor and an un-insulated overhead garage door to the outside and a service door into the center aisle. The lounge has floor and (2) insulated double-hung windows and (2) insulated service doors into the center aisle. The laundry room has floor and an insulated service door into the center aisle. The center aisles have double sliding doors with windows.

City: Midland
State: Virginia
Manufactured in: Lititz, PA
Dimensions: 36' x 132'