high country modular horse barn

Kennett Square, PA Project - 36x72 High Country

avatar J&N Structures Jan 2, 2026

Project Description:

This is a 36’x72’ modular horse barn in the high country style with (2) 10’ lean-tos. This Kennett Square, PA horse barn was built with LP SmartSide board & batten siding painted with clay paint manufactured by Fisher Paints. The corner trim and window trim are painted white. The doors and shutters are stained with chestnut stain manufactured by Sherwin Williams. The roof has 8 pitch rafters and architectural shingle roof with GAF Timberline HDZ (Pewter Gray color) shingles. The windows are insulated double-hung Endure Series windows manufactured by ProVia Windows & Doors. The insulated service doors and insulated service door with window were manufactured by Bird-In-Hand Windows & Doors. The wood raised panel interior door was manufactured by OrePac Building Products. The 6’x10’ roll doors with windows, 4’x7’ dutch doors with window, sliding double loft doors with window and shutters, and gable vents are manufactured by J&N Structures. On the roof is a B-48 Boston Series cupola with horse weather vane manufactured by Creative Cupolas.

Benefits:

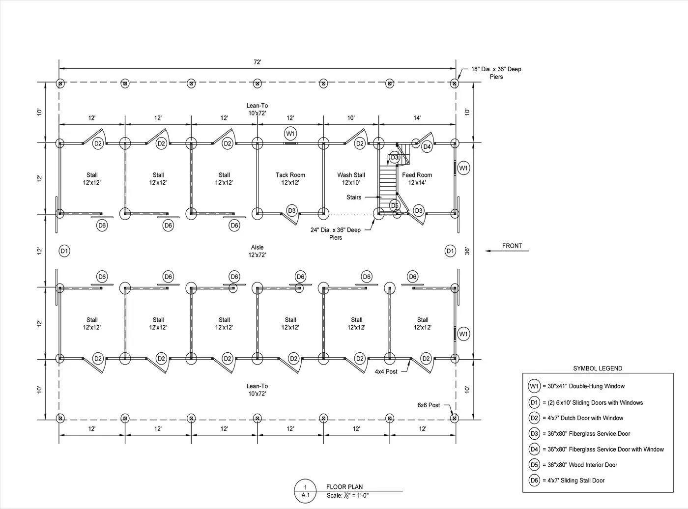
This modular horse barn has (9) 12’x12’ stalls, a 12’x12’ tack room, a 12’x10’ wash stall, a 12’x14’ feed room, and a 12’x72’ center aisle. It has a full loft accessed via enclosed stairs in the feed room. Each end of the loft has sliding double loft doors with windows and a gable vent near the peak. One side of the loft has (2) 8 pitch a-frame dormers. The stalls are lined floor to ceiling with southern yellow pine kick boards and have a sliding stall door into the center aisle and a dutch door with window to the outside. The tack room has an insulated double-hung window and an insulated service door into the center aisle. The wash stall has white glass boards on the walls, is open to the center aisle, and has a dutch door with window to the outside. The feed room has an insulated service door with window to the outside and another insulated service door into the center aisle. The center aisle has double sliding doors with windows at each end. In the front, there are insulated double-hung windows on either side of the sliding doors.

City: Kennett Square
State: Pennsylvania
Dimensions: 36' x 72'