high country modular barn

Falmouth, ME Project - 36x48 High Country with 8 Lean-To

avatar J&N Structures Feb 23, 2026

Project Description:

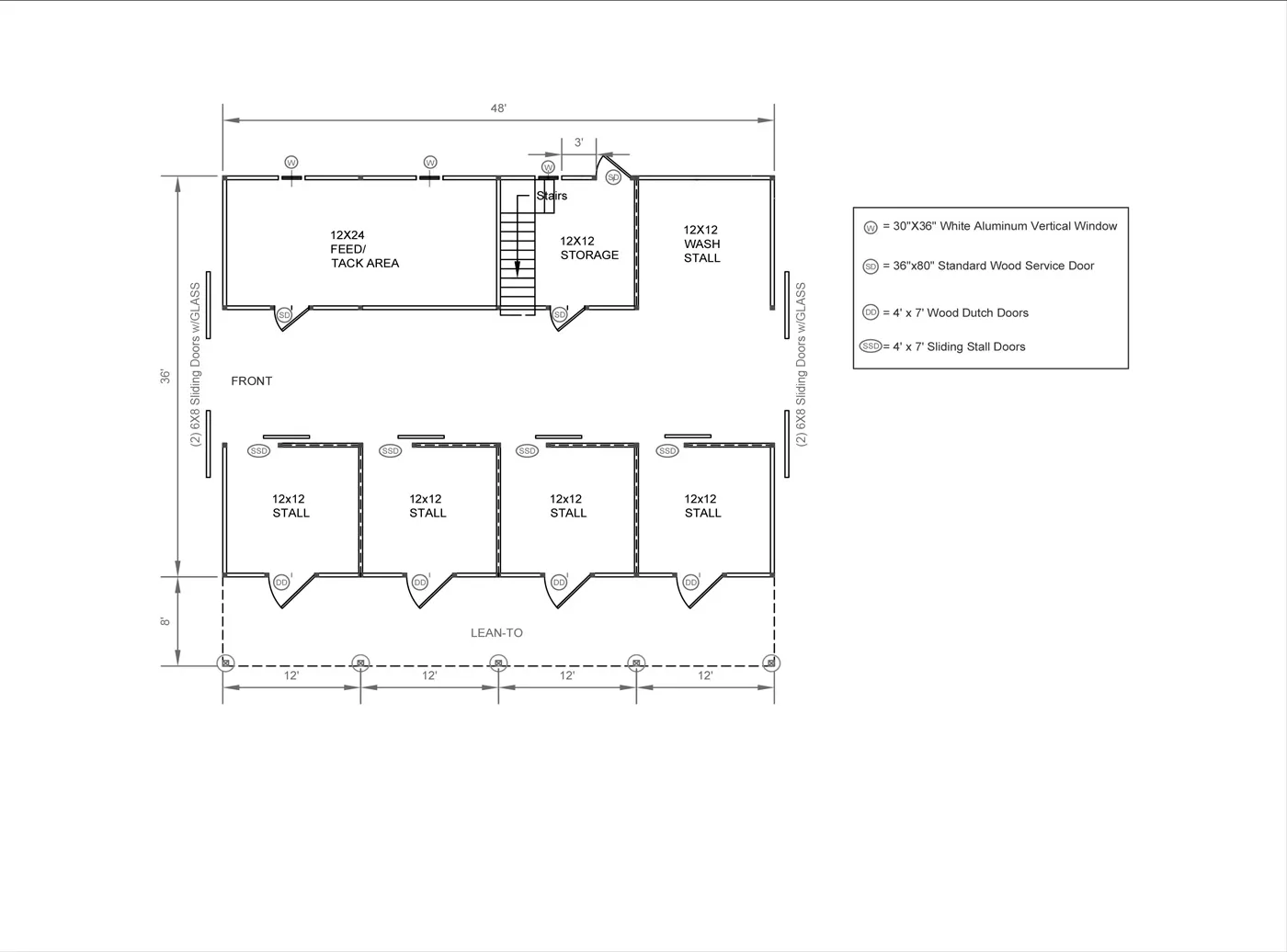
This is a 36'x48' modular horse barn in the High Country style with an 8' open lean-to. This Falmouth, ME horse barn was built with white pine board & batten siding painted with white paint manufactured by PPG. The corner trim and window trim are painted black. The door trim and crossbucks are painted black. The roof has 8 pitch rafters and architectural shingle roof with BP 2-tone black shingles. The 30"x36" vertical sliding aluminum windows with grids are manufactured by Appalachian Woodcrafts. The 4'x7' Dutch doors with 20" hinges and horseshoe latches and 6'x8' roll doors with windows and gable vents are manufactured by Appalachian Woodcrafts. On the roof is a B-42 Boston Series cupola manufactured by Creative Cupolas.

Layout:

This modular horse barn has (4) 12'x12' stalls and a 12'x12' storage room and a 12'x12' wash stall and a 12'x24' feed/tack room and a 12'x48' center aisle. The barn has a loft accessed via 36" wide L-shaped stairs. Each gable end of the loft has a screened gable vent. The loft has a door and a window. The stalls are lined with 4' high oak kick boards and have standard grills on stall fronts and partitions with southern yellow pine tongue and groove stall fronts and a sliding stall door into the center aisle and a Dutch door with window to the outside. The storage room has floor and (1) wood service door and a window. The wash stall has white glass boards on the walls and is open to the center aisle. The feed/tack room has a 36"x80" service door and (2) windows. The center aisle has (2) 6'x8' sliding doors with windows at each end.

City: Falmouth
State: Maine
Manufactured in: Mill Hall, PA
Dimensions: 36' x 48'