
Durham, ME Project - 36x42 High Country Barn
Project Description:
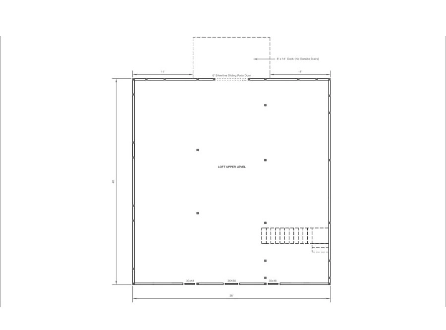
This High-Country style modular barn, built in Durham, Maine, features white pine board & batten siding painted in Sherwin Williams White. The roof is finished with BP’s 2-Tone Black architectural shingles and vented with a gable vent. Trim and a 42” cupola with windows are also painted white using Sherwin Williams paint, while the doors are stained in Butternut. The barn includes insulated double-hung EN600 windows from Pro-Via, three 9’x8’ carriage-style garage doors installed by Monterey Door (Bird In Hand, PA), and a 6' Silverline sliding patio door with screens and 15-lite grids. Stall win-dows are upgraded to wood Dutch doors, and the 6x9 roll doors, manufactured by Appa-lachian Woodcrafts, feature glass and grids.
Key Features & Benefits:
Garage & Workshop Space: (3) 12’x13’ garage bays, (1) 12’x12’ tack room, and (1) 12’x28’ workshop. Additional Structures: (1) 10’x40’ lean-to and an 8’x14’ deck by Appa-lachian Woodcrafts. Loft Enhancements: 30” x 48” and 36” x 60” fiberglass windows on one end, double sliding French doors on the other.
City: Durham
State: Maine
Manufactured in: Mill Hall, PA
Dimensions: 36' x 42'