high country modular horse barn

Blackstone, VA Project - 30x20 High Country

avatar J&N Structures Jan 2, 2026

Project Description:

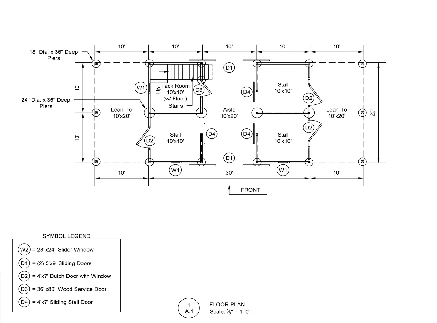
This is a 30’x20’ modular horse barn in the high country style with (2) 10’ lean-tos. This Blackstone, VA horse barn was built with white pine board & batten siding painted with red paint manufactured by Sherwin Williams. The corner trim, window trim, door trim, and crossbucks are painted white. The roof has 8 pitch rafters and architectural shingle roof with GAF Timberline HDZ (Charcoal color) shingles. The windows are sliding wood barn sash windows manufactured by Bird-In-Hand Windows & Doors. The 5’x9’ roll doors, 4’x7’ dutch doors with window, service door, loft door, and gable vents are manufactured by J&N Structures.

Benefits:

This modular horse barn has (3) 10’x10’ stalls, a 10’x10’ tack room, and a 10’x20’ center aisle. It has a full loft accessed via stairs in the tack room. One end of the loft has a swinging loft door, and the other end has a sliding window. On each end, up near the peak, is a gable vent. The stalls have a sliding stall door into the center aisle and a dutch door with window to the outside. One stall is lined with 4’ high oak kick boards. Two of the stalls have a chicken door. The tack room has a floor, sliding window, and a service door into the center aisle. The center aisle has double sliding doors at each end, with extra sliding windows on either side of the front doors.

City: Blackstone
State: Virginia
Dimensions: 30' x 20'